UNITED REALTY
STONEVIEW TOWNHOMES
7800 N OAK TRAFFICKWAY
KANSAS CITY, MISSOURI
ARCHITECT: JCa: Lonnie Shanks
CIVIL: SM Engineering
MODELING: ARCOR DESIGNS
STRUCTURAL: S1 STRUCTURAL
STATS
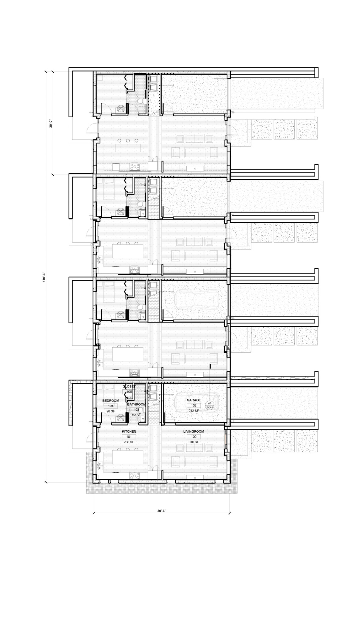
SQUARE FOOTAGE: 29 Units at 1,200 SF/Unit
Development of a lot to be the new home of 29 units, clustered in 2 story 3-plexes and 4-plexes. Included in the development is a dedicated park area, a creek, and walking trails.









































