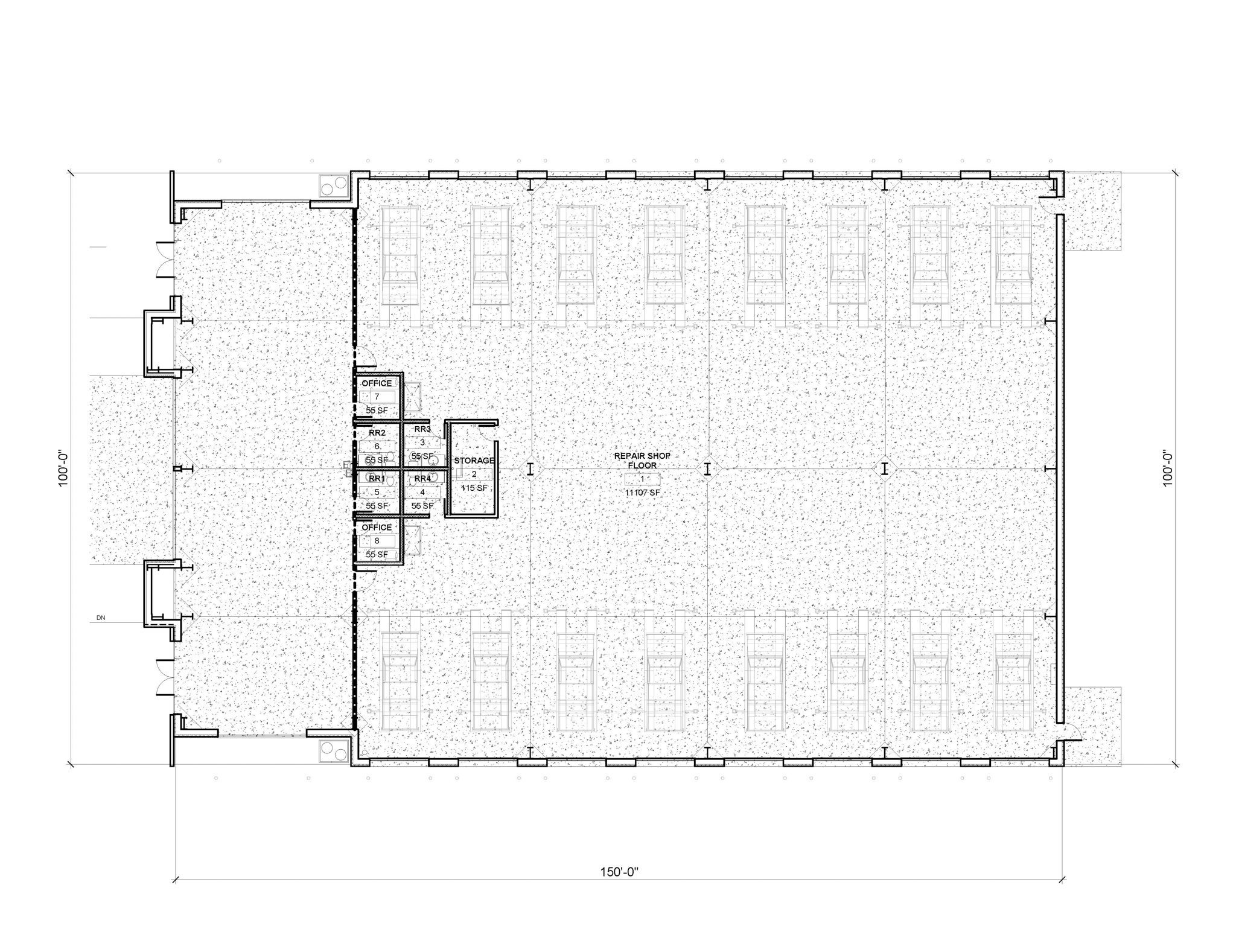
Richline Automotive
Shop Building
16400 EAST 23RD STREET SOUTH
Independence, Missouri
ARCHITECT: JCA-Lonnie
MODELING: Technocad 3d
MEP/STRUCTURAL: AEC CONSORTIUM
STATS
SQUARE FOOTAGE: 15,000 SF
A second building to their already flourishing business. This building offered the dearly needed additional showroom and shop space. By utilizing a Pre-engineered building as the structure type, and being clever about the interior finishes, the budget was kept to a minimum.






















