Mcdaniel TI
Tenant Improvement
1000 N 82ND ST.
KANSAS CITY, MISSOURI
ARCHITECT: JCa: Lonnie Shanks
MODELING: EDC Group
STRUCTURAL: S1 Structural
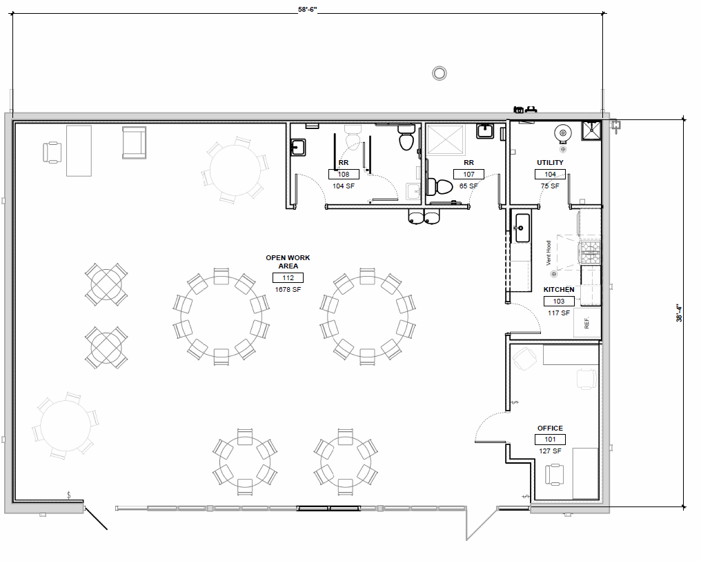
STATS
SQUARE FOOTAGE: 2,250 SF Total
Previously, this building was a fish restaurant. The new owner intends to use the building to train adults with disabilities. They train adults to be independent and self-sufficient. It also doubles as a banquet center. Once the building was gutted, we maintained the structure and exposed the interior with a minimalistic feel.

























