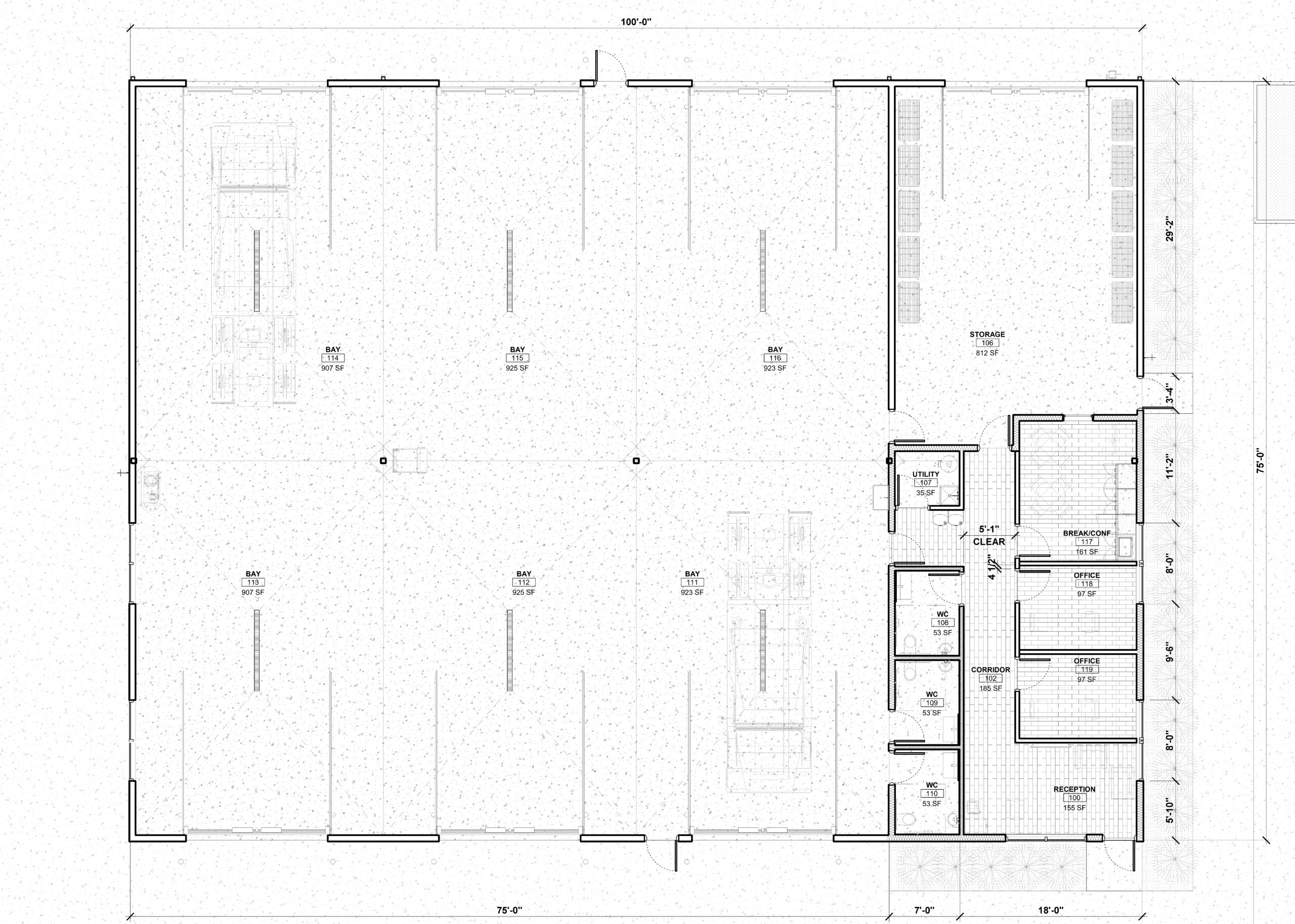
KC Truck
Repair Shop
6709 UNIVERSAL AVE
KANSAS CITY, MISSOURI
ARCHITECT: JCa: Lonnie Shanks
MODELING: Waddell Designs
STRUCTURAL: S1 STRUCTURAL
STATS
SQUARE FOOTAGE: 7,550 Total
A new over-the-road truck repair center relocated to a more centralized location. Complete with 3 drive-thru bays and a small office area.


















