DEPRIEST RESIDENCE

REMODEL
21700 N CO RD EE, 
DEARBORN, MISSOURI

ARCHITECT:  JCa: Lonnie Shanks
MODELING:  ARCOR DESIGNS

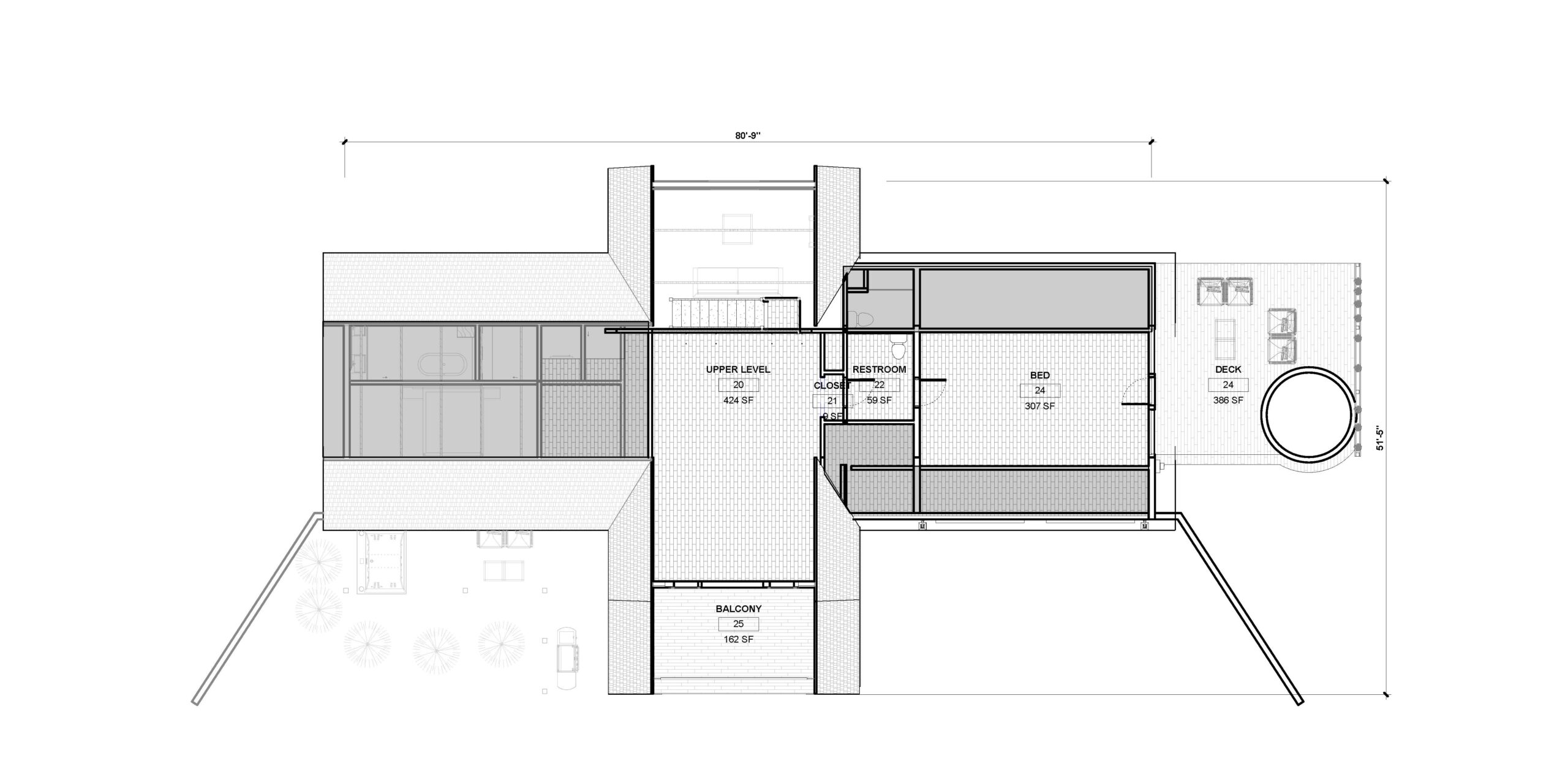
STATS
SQUARE FOOTAGE: 3,150 Total
                                     2,280 1st, 870 2nd
BEDS/BATHS:            2/3
GARAGE:                    2 Car

A Charming Earth-Contact Home built in the 80’s. The new updated look includes an added front roof and balcony, a newly designed entranc,e and interior rebranding. As an added benefit, the upstairs over-garage comes with a new deck and hot tub.