COTTAGE BY THE SEA
BLOCK 72B PARCEL 153
SEA VIEW ROAD, EAST END,
GRAN CAYMAN ISLANDS
Architect: JCa: Lonnie Shanks
MODELING: ARCOR DESIGNS
MODELING: Nadine Brown
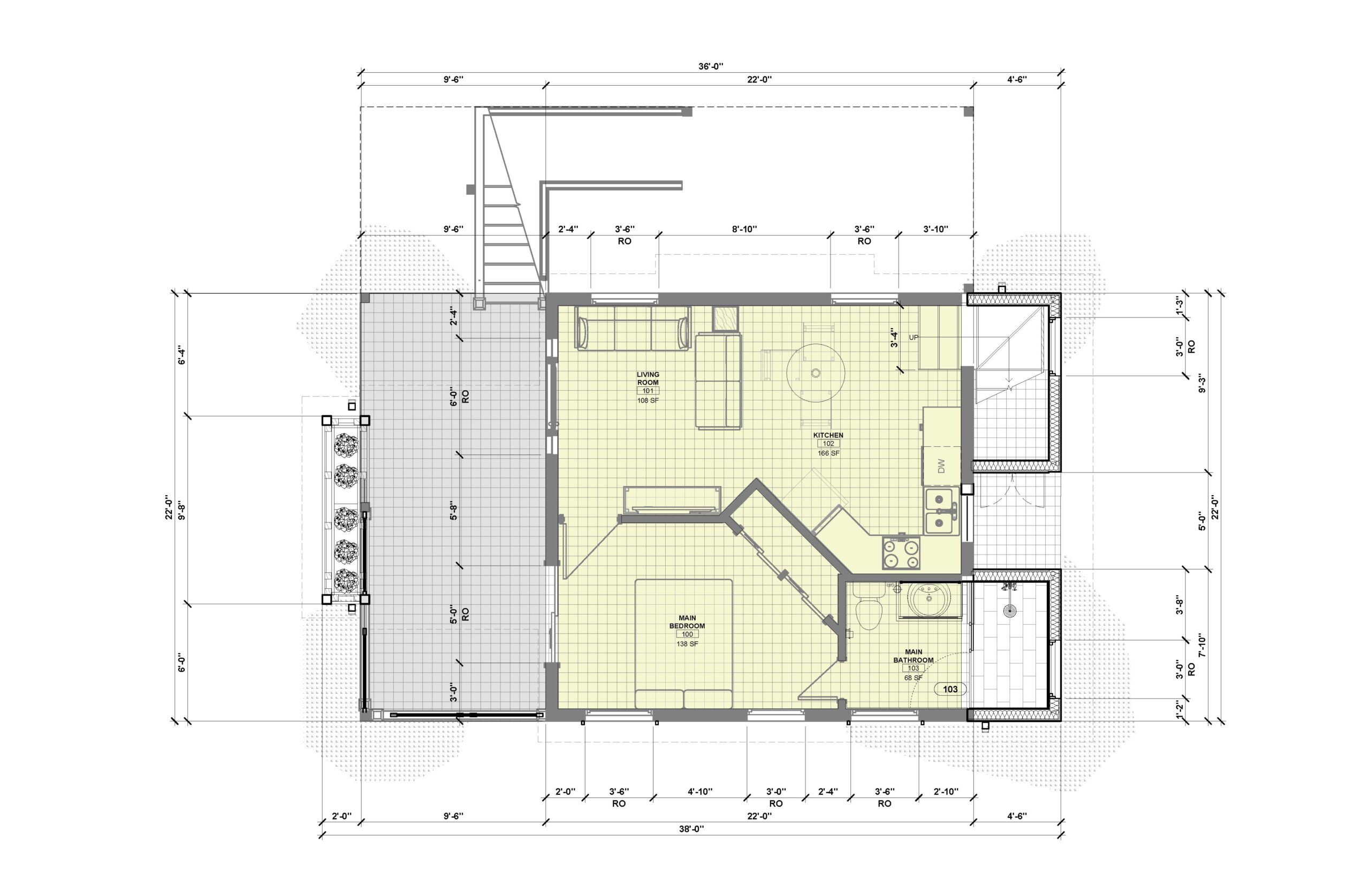
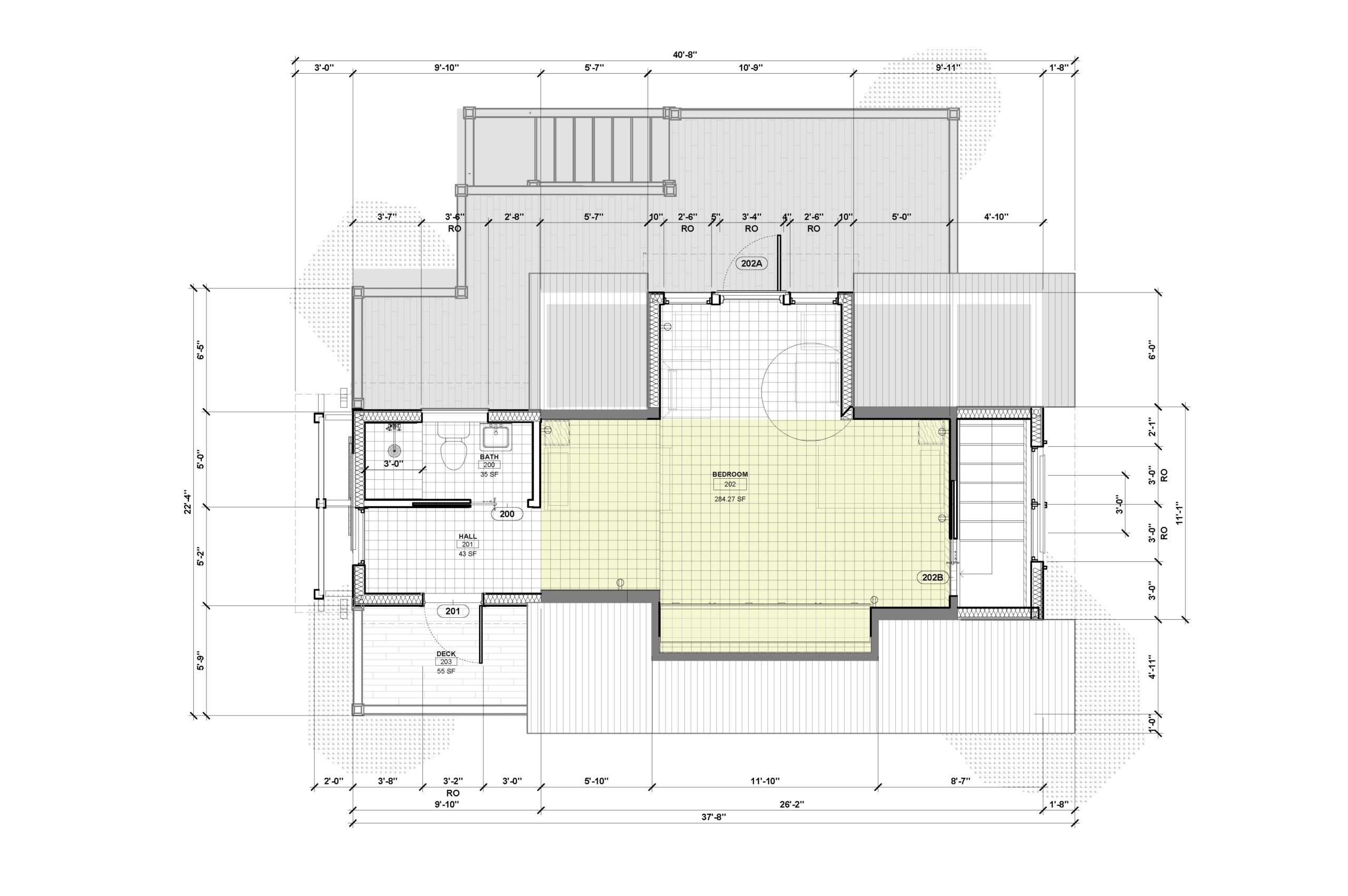
STATS
SQUARE FOOTAGE: 600Total
BEDS/BATHS: 2/2
A beuatiful cottage house, in need of a fresh facelift. This octtage house is already a dream come true vacation spot. With some creative adds it is now not only a dream vacation spot, but a one-of-a-kind vacation spot. With the help of our very creative client we were able to add just the right improvements. Thanks Nadine!




















